电磁振动筛简介
电磁振动筛主要用于包装工艺流程中,将水泥中的粗颗粒进行分离,以得到合格的水泥粉料。
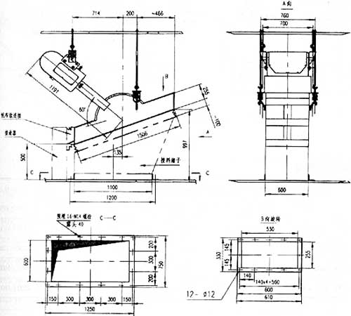
电磁振动筛安装要点
- 电磁振动筛的电磁振动器有八种安装角:90°、82.5°、67.5、60°、52.5°、45°、37.5°、30°,使用时可根据产量和筛分精度要求自行调整。
- 图中前后减振吊钩距离914系按60°安装角时的数值。
- 表中生产能力是3×3筛网,60°安装角的数值,需增大生产能力可换筛网规格或调安装角。
、
电磁振动筛技术参数
型号 | 筛面层数 | 筛孔尺寸(mm) | 筛面规格(mm) | 进料粒度(mm) | 处理能力(t/h) | 振动频率(Hz) | 双振幅(mm) | 电机功率(kg) | 重量(不包括电机)(kg) | 外形尺寸(mm×mm×mmm) |
YZ-924 | 1 | 3-30 | 900×2400 | ≤100 | 8-60 | 13-16 | 7 | 5.5 | 1356 | 2620×1720×1245 |
YZ-1230 | 1 | 3-50 | 1200×3000 | ≤100 | 12-120 | 13-16 | 8 | 5.5 | 750 | 3153×2031×1611 |
2YZ-1230 | 2 | 3-50 | 200×3000 | ≤100 | 12-120 | 13-16 | 8 | 5.5 | 2350 | 3850×2031×1812 |
3YZ-1236 | 3 | 3-50 | 1200×3000 | ≤200 | 15-160 | 13-16 | 8 | 11 | 4290 | 3900×2270×2780 |
2YZ-1542 | 2 | 5-80 | 1500×4200 | ≤200 | 30-230 | 13-16 | 8 | 15 | 5336 | 4400×2610×3680 |
3YZ-1548 | 3 | 5-80 | 1500×4800 | ≤200 | 36-260 | 13-16 | 8 | 15 | 6866 | 5782×2547×3679 |
