食品振动筛分机简介
食品振动筛分机振动形式特殊,物料运动轨迹和振幅可调,满足不同工艺要求。
食品振动筛分机特点
- 食品振动筛分机的筛分效率高,既可概略分级,食品振动筛分机又可进行精细筛分或过滤;
- 食品振动筛分机体积小、重量轻、安装移动方便;换网容易,食品振动筛分机的筛网寿命长、清洗方便、操作简单;
- 食品振动筛分机全封闭,无粉尘溢散,食品振动筛分机有利于善劳动条件;
- 食品振动筛分机粗、细料自动分级排出,能实现自动化作业;
- 出料口绕轴线360°任意设置,食品振动筛分机便于布置配套设备;
- 食品振动筛分机耗能小,噪音低、满足节能、环保要求;保养简单,食品振动筛分机可单层或多层使用。

食品振动筛分机技术参数
| 型号 | 筛网直径(mm) | 处理量(t/h) | 振动频率(min-1) | 电动功率(kw) | 重量(kg) | 备注 |
| YZ-1500 | Ф1500 | 9-14 | 930 | 2.2 | 750 | 处理量按标准物料河砂计算(1.67t/m3)选型时按处理物料比重换算 |
| YZ-1000 | Ф1000 | 4-6 | 930 | 1.1 | 500 | |
| YZ-800 | Ф800 | 2-4 | 930 | 0.75 | 400 | |
| YZ-600 | Ф600 | 1.5-2 | 1450 | 0.75 | 300 | |
| YZ-400 | Ф400 | 1-1.5 | 1450 | 0.25 | 160 |
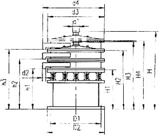
外型尺寸:
| 型号 | d1 | d2 | d3 | d4 | D1 | D2 | h1 | h2 | h3 | H1 | H2 | H3 | H4 | H | 有效面积 (m2) |
| YZ-1500 | 280 | 200 | 1650 | 2280 | 1420 | 1450 | 640 | 830 | 1020 | 660 | 1040 | 1300 | 1230 | 1490 | 1.77 |
| YZ-1000 | 220 | 140 | 1120 | 1520 | 975 | 1040 | 565 | 695 | 825 | 580 | 840 | 1040 | 970 | 1170 | 0.74 |
| YZ-800 | 200 | 130 | 850 | 1160 | 780 | 850 | 540 | 665 | 790 | 560 | 810 | 950 | 935 | 1075 | 0.44 |
| YZ-600 | 130 | 110 | 710 | 980 | 610 | 660 | 480 | 600 | 720 | 490 | 730 | 850 | 850 | 970 | 0.265 |
| YZ-400 | 120 | 100 | 470 | 700 | 400 | 445 | 435 | 525 | 615 | 440 | 620 | 700 | 700 | 780 | 0.1 |
订货须知:
639cc全民彩该机可配二~四层分级筛网,订货时请注明型号规格,所需配备筛网要求、材料、孔状、目数、订货数量。
