产品简介
639cc全民彩高效直线振动筛的筛箱运动轨迹近似为直线,采用双振动电机自同步拖动,是一种通用筛分设备。高效直线振动筛的筛机的动力装置有振动电机直接驱动和普通电机通过联轴器带动激振器间接驱动两种形式,高效直线振动筛可满足不同环境需要。
产品结构
高效直线振动筛的筛面有金属编织网、棒条、铸造、焊接、冲孔等多种形式,筛面既有单层结构也可多层布置,可满足不同筛分作业要求。
639cc全民彩高效直线振动筛分单层和双层;筛箱分敞开型和封闭型;筛网分为钢丝编织筛网、焊接筛网、调缝筛板、初梳齿筛板和其他特殊材料筛板。可根据所筛物料不同选用筛网,筛网由小块拼装,且更换简便。
特点及用途

型号编制说明

高效重型振动筛的分类及用途
(1)敝开型(ZSG-□×□)为座式,无防尘盖板,结构,用于大筛分能力、无粉尘污染的颗粒物料的筛分作业(2)封闭型(ZSGB-□×□)为座式,全封闭结构,用于大处理量、有粉尘污染的颗粒物料的筛分作业。
主要技术特性
| ZSG-10×20 | ZSG-10×30 | ZSG-15×30 | ZSG-15×40 | ZSG-15×50 | ZSG-20×50 | ZSG-20×60 | ZSG-20×70 | ZSG-20×80 | |||
筛分能力(t/h) | 10-200 | 15-250 | 20-350 | 25-400 | 30-500 | 50-500 | 60-600 | 65-600 | 65-600 | |||
给料料度(mm) | ≤250 | ≤350 | ≤400 | ≤400 | ≤400 | ≤400 | ≤400 | ≤400 | ≤400 | |||
筛分面积(m2) | 2 | 3 | 4.5 | 6 | 7.5 | 10 | 12 | 14 | 16 | |||
筛孔尺寸(mm) | 3-50 | 3-150 | 3-200 | 3-200 | 3-200 | 3-200 | 3-200 | 3-200 | 3-200 | |||
振动频率r/min | 960 | 960 | 960 | 960 | 960 | 960 | 720 | 720 | 720 | |||
双振幅(mm) | 8-12 | 8-12 | 8-12 | 6-10 | 6-10 | 6-10 | 10-15 | 8-12 | 8-12 | |||
电机功率(kw) | 2.2×2 | 2.2×2 | 3.7×2 | 3.7×2 | 5.5×2 | 5.5×2 | 7.5×2 | 7.5×2 | 7.5×2 | |||
供电电压(v) | 380 | 380 | 380 | 380 | 380 | 380 | 380 | 380 | 380 | |||
总重量 | 单层筛 | 2300 | 3300 | 5100 | 6800 | 8450 | 11100 | 13800 | 17500 | 21820 | ||
双层筛 | 2500 | 3600 | 5500 | 7300 | 9100 | 12000 | 14900 | 19800 | 23400 | |||
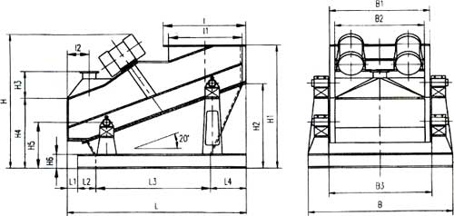
主要外形及安装尺寸
(1)ZSG系列单层筛外形及安装尺寸。注:下图为封闭式振动筛,敞开式无进料口、除尘口,亦无I、I1、I2、H3之尺寸。
型号 | ZSGB-10×20 | ZSGB-10×30 | ZSGB-15×30 | ZSGB-15×40 | ZSGB-15×50 | ZSGB-20×50 | ZSGB-20×60 | ZSGB-20×70 | ZSGB-20×18 |
L | 2000 | 3000 | 3000 | 4000 | 500 | 5000 | 6000 | 7000 | 8000 |
L1 | 119 | 156 | 156 | 225 | 225 | 225 | 225 | 225 | 225 |
L2 | 200 | 240 | 240 | 240 | 240 | 240 | 240 | 240 | 240 |
L3 | 1278 | 1991 | 1991 | 2712 | 3502 | 3502 | 4292 | 5082 | 5872 |
L4 | 403 | 613 | 613 | 823 | 1033 | 1033 | 1243 | 1453 | 1663 |
B | 1620 | 1620 | 2120 | 2120 | 2120 | 2620 | 2620 | 2620 | 2620 |
B1 | 1120 | 1120 | 1620 | 1620 | 1620 | 2120 | 2120 | 2120 | 2120 |
B2 | 1000 | 1000 | 1500 | 1500 | 1500 | 2000 | 2000 | 2000 | 2000 |
B3 | 1000 | 1000 | 1500 | 1500 | 1500 | 2000 | 2000 | 2000 | 2000 |
H | 1584 | 2019 | 2019 | 2422 | 2465 | 2465 | 2610 | 2968 | 3493 |
H1 | 1384 | 1769 | 1769 | 2172 | 2537 | 2537 | 2932 | 3295 | 3659 |
H2 | 948 | 1262 | 1262 | 1626 | 1990 | 1990 | 2353 | 2717 | 3081 |
H3 | 300 | 350 | 350 | 450 | 450 | 450 | 450 | 450 | 450 |
H4 | 789 | 860 | 860 | 900 | 900 | 931 | 930 | 931 | 931 |
H5 | 400 | 434 | 434 | 474 | 747 | 505 | 505 | 505 | 505 |
H6 | 150 | 200 | 200 | 200 | 200 | 200 | 200 | 200 | 200 |
I | 920 | 1120 | 1220 | 1320 | 1320 | 1320 | 1320 | 1320 | 1320 |
I1 | 800 | 1000 | 1000 | 1200 | 1200 | 1200 | 1200 | 1200 | 1200 |
I2 | 250 | 350 | 350 | 450 | 500 | 500 | 500 | 500 | 500 |
Ф | 300 | 300 | 350 | 350 | 400 | 400 | 400 | 400 | 400 |